Προτεινόμενο Πώληση

Προς Πώληση Μονοκατοικία 98 τ.μ., Βόλος

Μαγνησία, Βόλος, Αγ. Ανάργυροι
  • 110,000€

Video

Γενικά

Κωδικός Ακινήτου: 6-12232
  • Κατοικία, Μονοκατοικία
  • Τύπος ακινήτου
  • 1
  • Υπδοδωμάτιο
  • 1
  • Μπάνιο
  • 98
  • 1971
  • Έτος κατασκευής

Περιγραφή

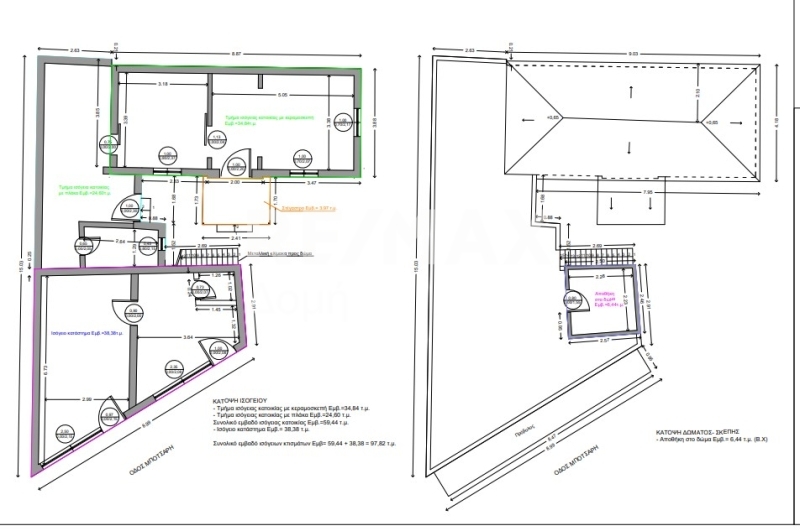
Σύμβουλος ακίνητης περιουσίας Κωνσταντίνος Σιάνος, μέλος της ομάδας Σιάνος Παπαγεωργίου και του γραφείου RE/MAX Δομή.Κωδικός ακινήτου: 6-12232Πωλείται κατά αποκλειστικότητα παλαιά ισόγεια μονοκατοικία συνολικής επιφάνειας 59,44 τ.μ., μαζί με ισόγειο κατάστημα 38,38 τ.μ., εντός οικοπέδου 183,87 τ.μ., στην περιοχή Άγιοι Ανάργυροι Βόλου, επί της οδού Μπότσαρη 37, εντός εγκεκριμένου ρυμοτομικού σχεδίου.Το ακίνητο διαθέτει πρόσοψη 14 μέτρων και συντελεστή δόμησης 1, γεγονός που το καθιστά άκρως αξιοποιήσιμο για μελλοντική ανάπτυξη ή νέα κατασκευή. Βρίσκεται σε μια ήσυχη και πλήρως κατοικημένη περιοχή, σε κοντινή απόσταση από σχολεία, αγορά, super market και στάσεις αστικής συγκοινωνίας, εξυπηρετώντας άμεσα τις ανάγκες μιας σύγχρονης οικογένειας.Αποτελεί ιδανική επιλογή για οικογένειες, νέους ιδιοκτήτες που αναζητούν κατοικία με δυνατότητες ανακαίνισης, ή και επενδυτές που βλέπουν την προοπτική μιας προσοδοφόρας εκμετάλλευσης στο άμεσο μέλλον. Πρόκειται για μια μοναδική ευκαιρία σε μια αναπτυσσόμενη συνοικία του Βόλου, με άμεση διαθεσιμότητα και πλήρη νομική καθαρότητα.
  • Διεύθυνση Μαγνησία, Βόλος, Αγ. Ανάργυροι
  • Πόλη Βόλος
  • Νομός Μαγνησία
  • Περιοχή Αγ. Ανάργυροι
  • Χώρα Ελλάδα

Λεπτομέρειες

Ενημερώθηκε στις 13 Ιανουαρίου, 2026 at 8:20 μμ
  • Κωδικός Ακινήτου: 6-12232
  • Τιμή: 110,000€
  • Εμβαδόν ακινήτου: 98 m²
  • Υπδοδωμάτιο: 1
  • Μπάνιο: 1
  • Έτος κατασκευής: 1971
  • Τύπος ακινήτου: Κατοικία, Μονοκατοικία
  • Διατίθεται προς: Πώληση

Ενεργειακή Κλάση

  • Ενεργειακή Κλάση: Ενεργειακή κλάση: G
  • Global energy performance index:
  • A+
  • A
  • B
  • C
  • D
  • E
  • F
  • G
  • H

Προγραμματίστε ένα ραντεβού με τον συνεργάτη

Οι πληροφορίες σου

Υπολογιστής Δανείου

Μηνιαία
  • Κεφάλαιο και τόκοι
  • Φόρος Ακίνητης Περιουσίας
  • Ασφάλεια σπιτιού
%

Πληροφορίες επικοινωνίας

Δείτε τα ακίνητα
Κωνσταντίνος Σιάνος

Ρωτήστε περισσότερα σχετικά με το ακίνητο

Παρόμοια ακίνητα

Compare listings

Compare
Κωνσταντίνος Σιάνος
  • Κωνσταντίνος Σιάνος