Προτεινόμενο Πώληση

Προς Πώληση Κτίρια Επαγγελματικά 458 τ.μ., Βόλος

Μαγνησία, Βόλος, Μεταμόρφωση
  • 460,000€

Video

Γενικά

Κωδικός Ακινήτου: 6-12225
  • Επαγγελματικός χώρος, Κτίρια Επαγγελματικά
  • Τύπος ακινήτου
  • 2
  • Υπνοδωμάτια
  • 1
  • Μπάνιο
  • 458
  • 1992
  • Έτος κατασκευής

Περιγραφή

Κωνσταντίνος Σιάνος – Σύμβουλος ακίνητης περιουσίας, team leader της ομάδας Σιάνος Παπαγεωργίου και του γραφείου RE/MAX Δομή.

Κωδικός ακινήτου: 6-8808

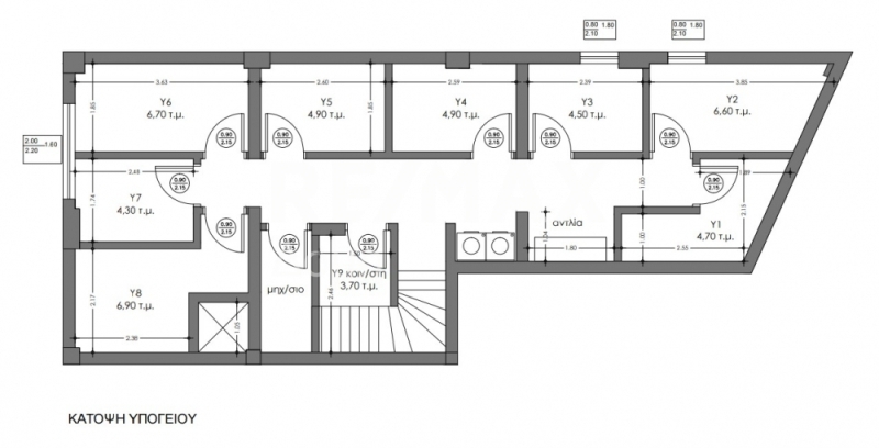
Πωλείται αποκλειστικά από το γραφείο μας επαγγελματικο κτίριο 5 επιπέδων, συνολικής επιφάνειας 458 τ.μ., στον Βόλο. Το κτίριο ανήκει στην ενεργειακή κλάση Ζ και διαθέτει θέρμανση μέσω κλιματιστικών.

Αναλυτικά, αποτελείται από υπόγειο, ισόγειο, πρώτο, δεύτερο και τρίτο όροφο, με κάθε επίπεδο να έχει επιφάνεια 90 τ.μ. Το κτίριο διαθέτει κουφώματα αλουμινίου, διπλά τζάμια, δάπεδα από πλακάκι, εσωτερική σκάλα και αποθήκη, ενώ το φρεάτιο ανελκυστήρα είναι έτοιμο, αλλά ο ανελκυστήρας δεν έχει τοποθετηθεί.

Παλαιότερα λειτουργούσε ως φροντιστήριο, ενώ συνοδεύεται από μελέτη για τη δημιουργία 8 διαμερισμάτων με αποθηκευτικούς χώρους. Τα σχέδια της μελέτης περιλαμβάνονται στις φωτογραφίες, προσφέροντας μια ξεκάθαρη εικόνα των δυνατοτήτων του ακινήτου.

Με θέα στο αστικό τοπίο και τη δυνατότητα αξιοποίησης σε διαφορετικές χρήσεις, το ακίνητο αυτό αποτελεί εξαιρετική ευκαιρία για επένδυση.

Για περισσότερες πληροφορίες ή για να προγραμματίσετε μια επίσκεψη, επικοινωνήστε μαζί μας!

  • Διεύθυνση Μαγνησία, Βόλος, Μεταμόρφωση
  • Πόλη Βόλος
  • Νομός Μαγνησία
  • Περιοχή Μεταμόρφωση
  • Χώρα Ελλάδα

Λεπτομέρειες

Ενημερώθηκε στις 30 Οκτωβρίου, 2025 at 1:31 μμ
  • Κωδικός Ακινήτου: 6-12225
  • Τιμή: 460,000€
  • Εμβαδόν ακινήτου: 458 m²
  • Έκταση: 101 m²
  • Υπνοδωμάτια: 2
  • Μπάνιο: 1
  • Έτος κατασκευής: 1992
  • Τύπος ακινήτου: Επαγγελματικός χώρος, Κτίρια Επαγγελματικά
  • Διατίθεται προς: Πώληση

Ενεργειακή Κλάση

  • Ενεργειακή Κλάση: Ενεργειακή κλάση: D
  • Global energy performance index:
  • A+
  • A
  • B
  • C
  • D
  • E
  • F
  • G
  • H

Προγραμματίστε ένα ραντεβού με τον συνεργάτη

Οι πληροφορίες σου

Υπολογιστής Δανείου

Μηνιαία
  • Κεφάλαιο και τόκοι
  • Φόρος Ακίνητης Περιουσίας
  • Ασφάλεια σπιτιού
%

Πληροφορίες επικοινωνίας

Δείτε τα ακίνητα
Κωνσταντίνος Σιάνος

Ρωτήστε περισσότερα σχετικά με το ακίνητο

Παρόμοια ακίνητα

Compare listings

Compare
Κωνσταντίνος Σιάνος
  • Κωνσταντίνος Σιάνος